2 / 589 Malvern Road, Hawksburn Village
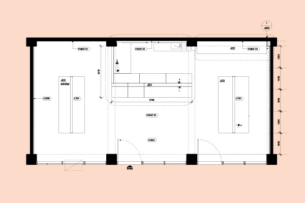
Conceived by DesignOffice for our good friends Studio Hi Ho, the office build at 2 / 589 Malvern Road was completed in 2016. It has provided a working environment broken into three key areas; presentation, research and production. Cork panels bookend the space and a detailed joinery unit will provide a crafted centrepiece.
Construction Value:
$30K
Construction Time:
Construction Time:
2 months
Architect:
Architect:
DesignOffice
Client:
Client:
Studio Hi Ho




