Future Future
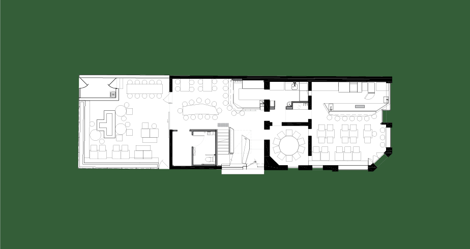
Designed by Olaver Architecture for Milieu Hospitality, Future Future is scheduled to be completed in early 2018. The project involves the construction and fit-out of a two-level terrace building in Richmond into a 120-seat Japanese restaurant and bar.
Status:
Built
Construction Time:
Construction Time:
2 months
Architect:
Architect:
Olaver Architecture
Client:
Client:
Milieu Property






